Allotment

Viseu, Viseu

Allotment
Send property to a friend
Know more »
captcha
Required fields *
Exclisive
Seguir imóvel Receba um alerta quando existir uma Baixa de Preço
Name
Insert the code from the image
captcha
Code
Allotment, Viseu, Viseu 470 000 € Ref: 1233
4257 m²
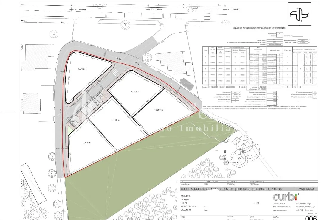
🏡 Land with Approved Project in Viseu for 5 Houses
– Excellent Investment Opportunity
We present this excellent plot of land with an approved subdivision project for 5 houses, ideal for builders and investors seeking a secure business with high profitability potential.
📐 Main features:
Land with a total area of ​​_ m²
Approved project for 5 single-family homes
Planned infrastructure (access, water, electricity and sanitation networks)
Possibility of immediate start of construction
Excellent sun exposure
📍 Prime location, situated in a quiet residential area, with good access and proximity to shops, services, schools and transport.
💼 Investment advantages:
Urban planning process already approved (reduces time and costs)
Strong housing demand in the area
Ideal for sale or rental of the houses
📞 For more information or to visit the site, please contact us.
 
Interested in this property?
Date
Time
Name
Contact
Message
captcha
Code
Property Type Allotment
Typology 0 Bedrooms
Objective Sell
Condition Projected
Price 470 000 €
Year of Construction N/A
Country Portugal
District Viseu
County Viseu
Parish São João de Lourosa
Zone N/A
General Features
General
  •  
Rooms
Rooms Area Floor Walls Ceilings Comments
 
Surroundings
  •  
Facilities
  •  
Domotic System (Home automation)
  •  
Renewable Energy
  •  
See too
  • Real estate land
  • Real estate land
  • Real estate land
  • Real estate land
  • Real estate land
Exclisive
Real estate land
Real estate land
Viseu, Viseu
65 000 €
Real estate land
65 000 €
Real estate land Viseu, Viseu
4885 m² A. Land
Contactar
  • Piece of Real Estate
  • Piece of Real Estate
  • Piece of Real Estate
  • Piece of Real Estate
  • Piece of Real Estate
Exclisive
Piece of Real Estate
Piece of Real Estate
Viseu, Viseu
90 000 €
Piece of Real Estate
90 000 €
Piece of Real Estate Viseu, Viseu
681 m² A. Land
Contactar
  • Stand
  • Stand
  • Stand
  • Stand
  • Stand
Stand
Stand
Viseu, Viseu
85 000 €
Stand
85 000 €
Stand Viseu, Viseu
2500 m² A. Land
Contactar
We are available to help you I want to be contacted
Date
Time
Name
Contact
Message
captcha
Code
O que é a pesquisa responsável
Esta pesquisa permite obter resultados mais ajustados à sua disponibilidade financeira.